Telefonas: +37067103966
El. paštas: [email protected]
Privatumo politika

Parduodamas namas Vilniaus rajone

Greita santrauka

Kaina
239900.00 €
Vieta
Vilniaus r. sav. , Vėliučionių k. , Liepų al.
Objekto Tipas
Butas
Veiksmas
Pardavimas
Objekto būklė
Įrengtas
Šildymas
Elektra
Aukštas
1
Kambarių sk.
6
Statybos metai
2021
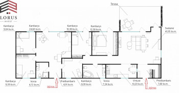
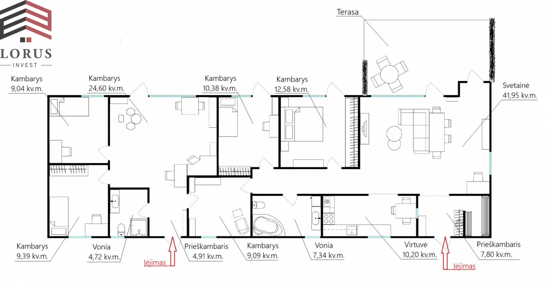
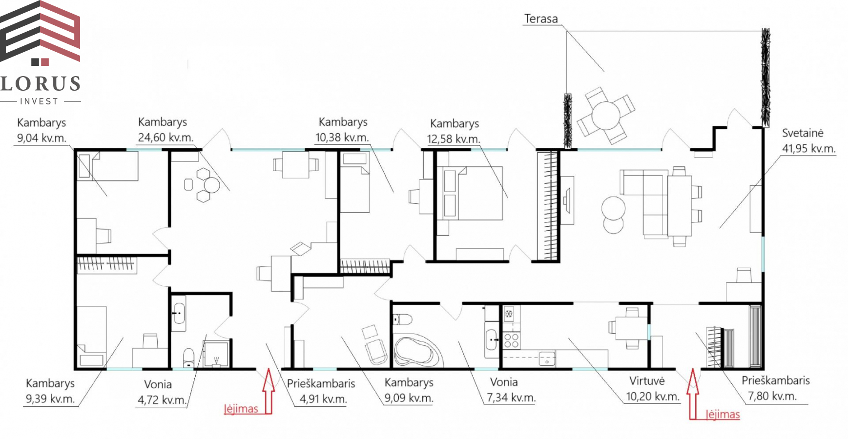
Bendras plotas
152.00 m2

Aprašymas

Objekto ID:15882

DABAR TAIKOMA KALĖDINĖ NUOLAIDA
265 000e -> 239 900e. Turite klausimų ? Susisiekite Jums patogiu metu !

Parduodamas vieno aukšto namas gamtos prieglobstyje. Tai namai, vertinantiems privatumą bei ramią ir saugią aplinką. Gyvenamoji vieta yra puikiai pritaikyta tiems, kurie siekia gyventi toliau nuo miesto triukšmo, jausti ramybę, atskirumą bei saugumą, tačiau tuo pat metu greitai (vos per 15 min.) pasiekti Vilniaus miesto centrą;

Namas šviesus ir erdvus du atskiri vonios kamabariai (vienas dušas, kitame vonia), du atskiri įėjimai (prireikus gali gyventi dvi atskiros šeimos). Keturi miegamieji kambariai didelė ir erdvi svetainė sujungta su virtuve. Techninė patalpa – sandėliukas ir rūbinė. Name tikrai nepritrūks vietos

- Namas vieno aukšto – 152kv.m su ~15 arų nuosavu sklypu;
- Pastato energijos suvartojimo klasė – A++.

- Šalia namo didelė automobilių parkavimo vieta (> 5-6 automobiliams);

- Rami ir saugi kaimynystė - tik vienas kaimynas;

- Patogus išvažiavimas link miesto centro;

- Ant stogo įrengta nuosava saulės elektrinė - 9,8 kw. Ypač pigus išlaikymas.

- Aukštos lubos nuo 3,2 iki 5 m;

- Šildymas: grindinis;

- Nuosavas vandens artezinis gręžinys, atvestas į namą, bendras tik su 1 kaimynu;

- Atskira nuo miesto kanalizacija, bendra tik su 1 kaimynu;

- Šildymas – oras vanduo;

- Eco ventiliacijos sistema (rekuperatorius) gryno-gaivaus oro padavimo-ištraukimo sistema be papildomų vamdžių ir mechaninių sistemų;

- Iki Vilniaus miesto ribos - 5 km / iki senamiesčio - 10 km, iki Aušros vartų-12 km, iki Vilniaus Katedros - 13 km;

- Visuomeninis transportas – 600 metrų;

- Vaikų žaidimų aikštelė - 500 metrų;

- Vaikų darželis 340 metrų;

- Parduotuvės ir paštomatai pasiekiami per 5 min automobiliu iki 7 km;



APIE NAMĄ:

- Vitrininiai langai: Kommerling 76MD profilis (Vokietija);
- Pamatai (gręžtiniai, poliniai su gelžbetoniniu rostverku);
- Išorinės namo sienos - mūras iš "ARKO M24" blokelių;
- Sienos šiltintos 25 cm EPS 70 polistiroliu;
- Išorinės ir vidinės sienos - su molinėmis (akytomis) plytomis;
- Viso sienų storis su sienų apšiltinimu - 50 cm;
- Išorinės namo sienos - molinis mūras iš "Keraterm 25" blokelių;
- Sienos apšiltintos iš išorės 25 cm EPS 70 putų polisterolu;
- Vidinės sienos - su molinėmis plytomis pertvaromis “Keraterm 12”;
- Stogas itališka skarda: profilis BT T-18 RAL7016;
- Stogo šiltinimas - biria pučiama mineralinė vata “KNAUF’ SUPAFIL TIMBER FRAME 034”:
Reakcija į ugnį - A1 (produktas nedegus visą tarnavimo laiką);
Sukritimo koeficientas - S1 (sukritimas iki 1%per 20 m.);
Pralaidi vandens garams MU-1;
Netraukia drėgmės, nepelija.

Susisiekite Jums patogiu metu, suteiksiu visą rūpimą informaciją!

Objekto ID:15882

Kontaktinis agentas

Teresė Norvaišaitė

Telefonas / Mobilus:
+37066611661
El. paštas:
[email protected]