Objekto ID:15882
Parduodamas modernus, vieno aukšto A++ klasės gyvenamasis namas Vėliučionių k., Liepų al.
Tai puikus pasirinkimas šeimai, ieškančiai ramybės, erdvės ir labai mažų išlaikymo sąnaudų, išlaikant patogų susisiekimą su Vilniumi.
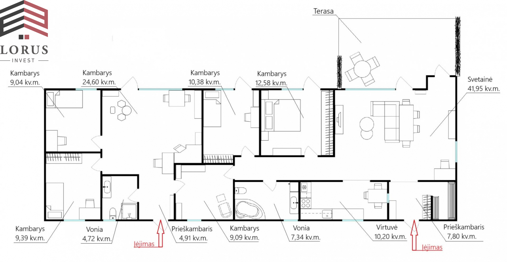
152 m² namas suplanuotas patogiam šeimos gyvenimui, o 15 arų sklypas suteikia privatumo, vietos vaikų žaidimams, terasai ar sodui.
A++ energetinė klasė, įrengta ~9,8 kW saulės elektrinė, rekuperacija- minimalias šildymo ir elektros sąnaudas ištisus metus.
-Namas vieno aukšto – 152kv.m su ~15 arų nuosavu sklypu;
-Pastato energijos suvartojimo klasė – A++.
-Šalia namo didelė automobilių parkavimo vieta (> 5-6 automobiliams);
-Rami ir saugi kaimynystė - tik vienas kaimynas;
-Patogus išvažiavimas link miesto centro;
-Ant stogo įrengta nuosava saulės elektrinė - 9,8 kw. Ypač pigus išlaikymas.
-Aukštos lubos nuo 3,2 iki 5 m;
-Nuosavas vandens artezinis gręžinys, atvestas į namą, bendras tik su 1 kaimynu;
-Atskira nuo miesto kanalizacija, bendra tik su 1 kaimynu;
-Šildymas – oras vanduo;
-Eco ventiliacijos sistema (rekuperatorius) gryno-gaivaus oro padavimo-ištraukimo sistema be papildomų vamdžių ir mechaninių sistemų;
APIE NAMĄ:
-Vitrininiai langai: Kommerling 76MD profilis (Vokietija);
-Pamatai (gręžtiniai, poliniai su gelžbetoniniu rostverku);
-Išorinės namo sienos - mūras iš "ARKO M24" blokelių;
-Sienos šiltintos 25 cm EPS 70 polistiroliu;
-Išorinės ir vidinės sienos - su molinėmis (akytomis) plytomis;
-Viso sienų storis su sienų apšiltinimu - 50 cm;
-Išorinės namo sienos - molinis mūras iš "Keraterm 25" blokelių;
-Sienos apšiltintos iš išorės 25 cm EPS 70 putų polisterolu;
-Vidinės sienos - su molinėmis plytomis pertvaromis “Keraterm 12”;
-Stogas itališka skarda: profilis BT T-18 RAL7016;
-Stogo šiltinimas - biria pučiama mineralinė vata “KNAUF’ SUPAFIL TIMBER FRAME 034”:
-Reakcija į ugnį - A1 (produktas nedegus visą tarnavimo laiką);
-Sukritimo koeficientas - S1 (sukritimas iki 1%per 20 m.);
-Pralaidi vandens garams MU-1;
-Netraukia drėgmės, nepelija.
LOKACIJA:
-Iki Vilniaus miesto ribos - 5 km / iki senamiesčio - 10 km, iki Aušros vartų-12 km, iki Vilniaus Katedros - 13 km;
-Visuomeninis transportas – 600 metrų;
-Vaikų žaidimų aikštelė - 500 metrų;
-Vaikų darželis 340 metrų;
-Parduotuvės ir paštomatai pasiekiami per 5 min automobiliu iki 7 km;
Objekto ID:15882