Telefonas: +37067103966
El. paštas: [email protected]
Privatumo politika

Parduodami naujos statybos sublokuoti namai Mažuosiuose Gulbinuose, Kaributo gatvėje

Greita santrauka

Kaina
189000.00 €
Vieta
Vilnius , Vilniaus m. , Mažieji Gulbinai
Objekto Tipas
Namas
Veiksmas
Pardavimas
Objekto būklė
Dalinė apdaila
Šildymas
Elektra
Aukštas
0
Kambarių sk.
4
Statybos metai
2025
Bendras plotas
93.00 m2

Aprašymas

Objekto ID:16118

2025 metais pastatyti, A++ energinio naudingumo klasės sublokuoti namai naujajame KARIBUTO kvartalo projekte. Vilniaus mieste, Mažuosiuose Gulbinuose, Kaributo gatvėje!

Šiuo metu turime 15 laisvų namų variantų su skirtingo ploto sklypais, (nuo 1,5 a. iki 6 a. ploto).

Namai parduodami su daline vidaus apdaila ir pilnai įrengtu lauku. Įrengtos elektros, santechnikos, nuotekų sistemos, išbetonuotos visų aukštų grindys su įrengta grindinio šildymo sistema, sumontuotos pertvarinės sienos, apšildytos lubos. Sutvarkyta - išasfaltuota, aptverta ir apšviesta teritorija, suformuotos automobilių parkavimo vietos, nutiestas pėsčiųjų takas.

Projekto galutinio užbaigimo terminas ~ 6 mėnesiai, dalinės apdailos užbaigimo terminas ~ 2 mėnesiai.

APŽIŪROS BEI REZERVACIJOS GALIMOS JAU DABAR!

BENDRA INFORMACIJA:
◾Adresas: Kaributo g. 46;
◾Bendras namo plotas: ~ 93 kv. m.;
◾Sklypo plotas: ~ 2 a.;
◾Paskirtis: gyvenamoji:
◾Aukštų skaičius: 3;
◾Kambarių sk.: 4;
◾Namo statybos metai: 2025 m.;
◾Energinė namo klasė: A++;
◾Šildymo tipas: oras - vanduo.

NAMŲ IŠPLANAVIMAS:
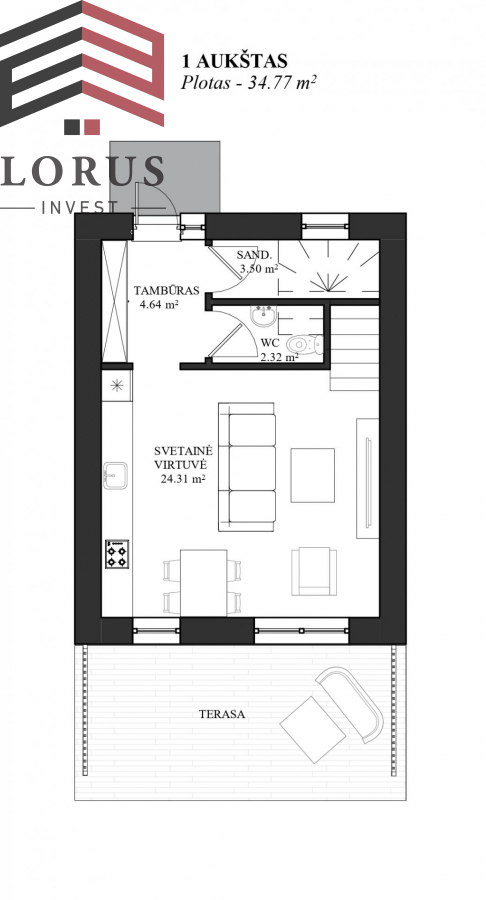
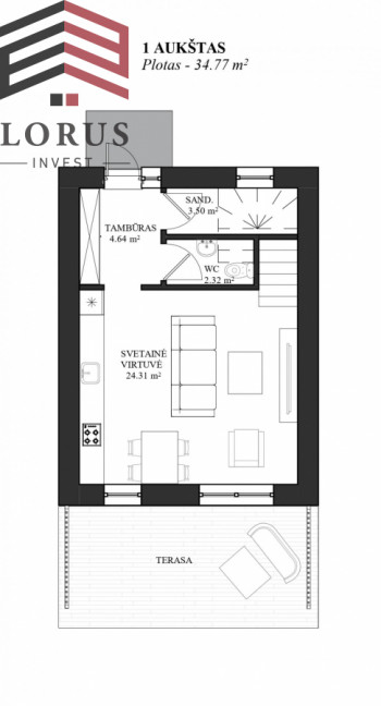
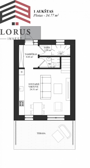
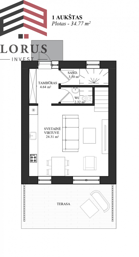
Pirmas aukštas:
◾Svetainė kartu su virtuve - 24,31 kv. m.;
◾San. mazgas - 2,32 kv. m.;
◾Techninė patalpa - 3,50 kv. m.;
◾Tambūras - 4,64 kv. m.;

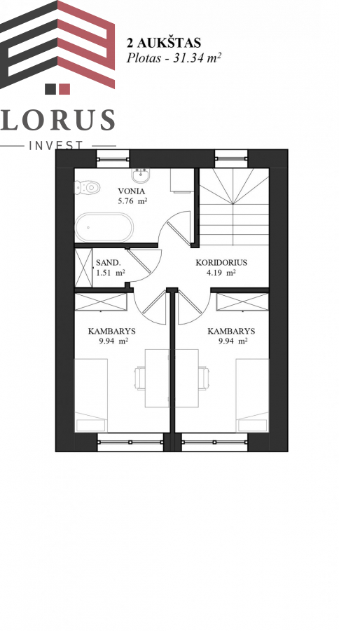
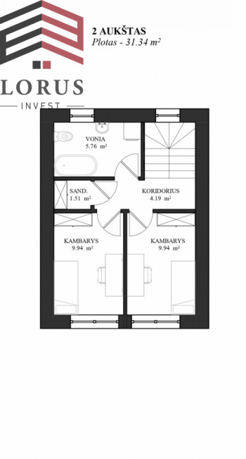
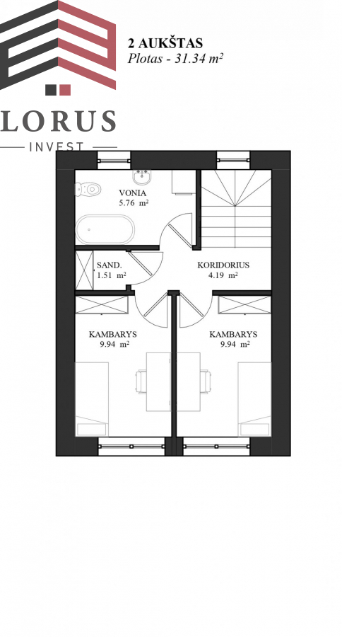
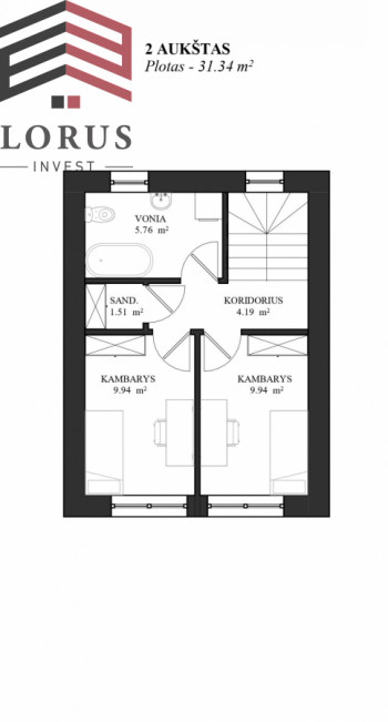
Antras aukštas:
◾Vonios kambarys - 5,76 kv. m.;
◾Vaikų miegamasis 1 - 9,94 kv. m.;
◾Vaikų miegamasis 2 - 9,94 kv. m.;
◾Sandėliukas - 1,51 kv. m.;
◾Koridorius - 4,19 kv. m.

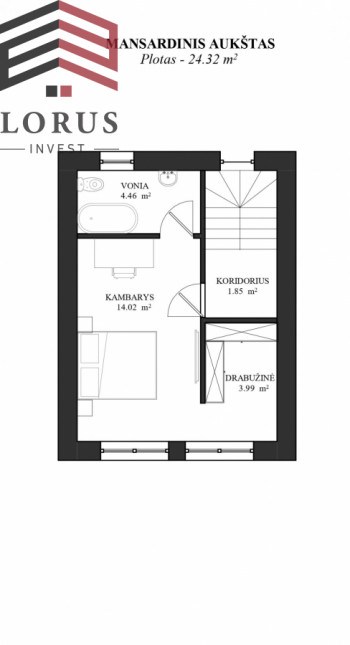
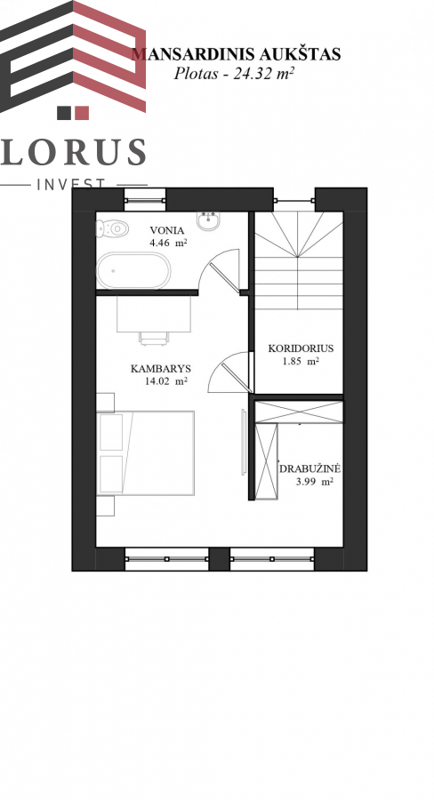
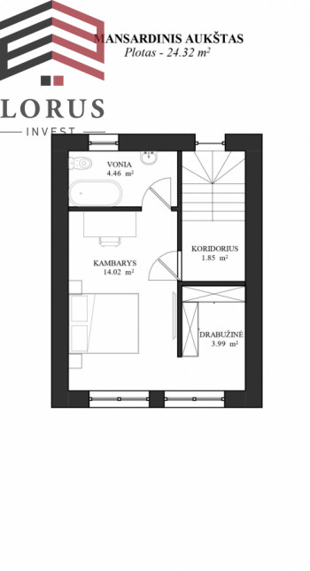
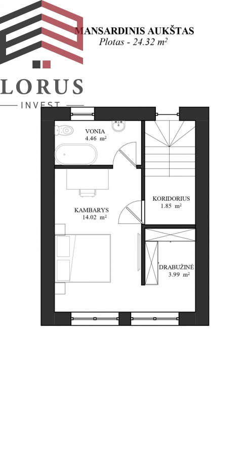
Trečias aukštas:
◾Tėvų miegamasis - 14,02 kv. m.;
◾Vonios kambarys - 4,46 kv. m.;
◾Koridorius - 1,85 kv. m;
◾Drabužinė - 3,99 kv. m.

NAMŲ ĮRENGIMAS:
◾Pamatai: gręžtiniai, poliniai;
◾Namų sienos: silikato blokeliai, apšiltinta neoporu, fasado apdaila - dekoratyvinis tinkas, klinkeris;
◾Stogų danga: „ruukki” skarda, apšiltinta akmens vata ir PIR plokšte;
◾Langai: plastikiniai, varstomi, 3-jų stiklų, 2-jų paketų, A++ klasės;
◾Šildymo tipas: numatoma oras - vanduo šilumos siurblio sistema, pravesti mazgai sistemai įsirengti;
◾Visų aukštų grindyse sumontuotas grindinio šildymo vamzdynas su kolektorine spinta;
◾Kanalizacija: vietinė, „Bio” valymo įrenginys;
◾Vanduo - vietinis, (gręžinys), karšto vandens ruošimas numatomas boileriu;
◾Visų namų aukštų grindys išbetonuotos;
◾Pertvarinės sienos - gipsinės;
◾Parkavimo vietos išklojamos trinkelėmis, privažiavimo iki namų kelias - asfaltuotas;
◾Įrengta terasa vidinėje kiemo dalyje;
◾Namai parduodami su išlyginta, suformuota bei aptverta teritorija.

LOKACIJOS PRIVALUMAI:
◾Tvarkinga ir saugi kaimynystė;
◾Gyvenvietės teritorijoje įrengta žalioji zona;
◾Namai strategiškai patogioje vietoje, netoliese autobusų stotelės bei prekybos centrai, geras susisiekimas su Vilniaus miestu;
◾Netoliese miškai, ežerai bei daugybė pažintinių takų.

◾Artimiausia viešojo transporto stotelė - 850 m.;
◾Vaišelgos g. pradžioje planuoja įsikurti „Aibė” ir „Iki” prekybos centrai;
◾Šalimais esančią Dangeručio g. planuojama sujungti su Molėtų pl.

Susisiekite Jums patogiu metu, suteiksiu visą rūpimą informaciją!

----

Visus naujausius Lorus nekilnojamojo turto skelbimus rasite mūsų internetiniame puslapyje www.Lorus.lt. Kviečiame apsilankyti!

Objekto ID:16118

Kontaktinis agentas

Tomas Augutavičius

Telefonas / Mobilus:
+37066611661
El. paštas:
[email protected]